LAKÓÉPÜLET
KÖZÉPÜLET
BELSŐÉPÍTÉSZET
KONTAKT
LAKÓÉPÜLET
KÖZÉPÜLET
BELSŐÉPÍTÉSZET
KONTAKT
tetrA Architects studio
LAKÓÉPÜLET
BUDAÖRS
2018
FOTÓ: JAKSA BÁLINT

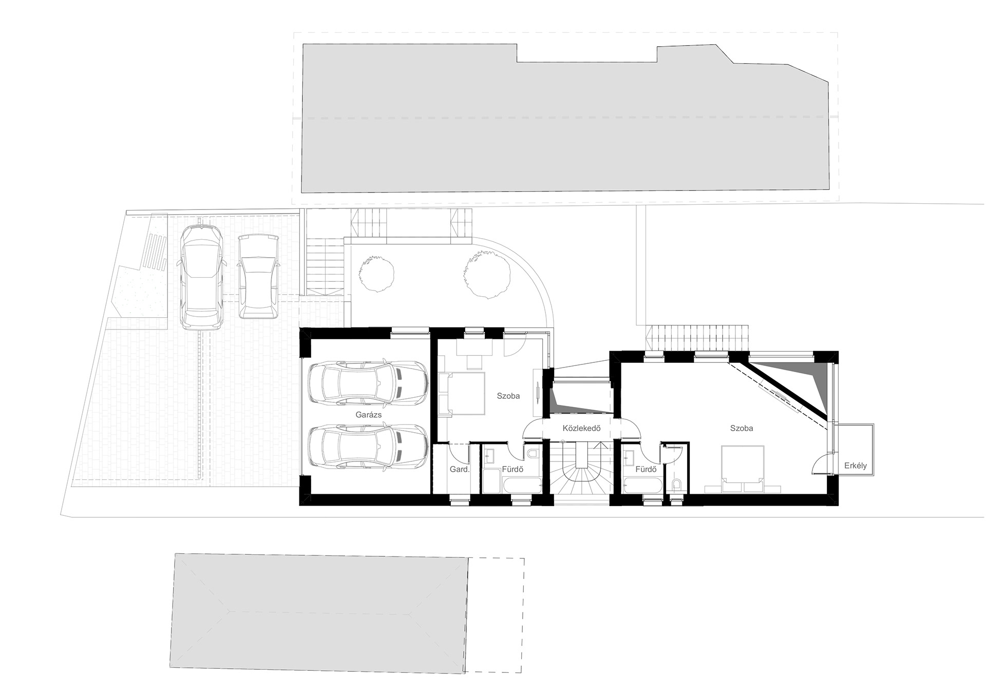
-1. SZINT

FÖLDSZINT

EMELET

You may also like

LAKÓÉPÜLET - BUDAÖRS
2023
ÜDÜLŐÉPÜLET BŐVÍTÉSE - ÁBRAHÁMHEGY
2023
ÉTTEREM BELSŐ - BUDAPEST
2023
NÉGY LAKÁSOS SORHÁZ - SOLYMÁR
2023
RENDEZVÉNYKÖZPONT - FARKASKÚTVÖLGY
2023
.
2023
IRODAHÁZ FELÚJÍTÁSA ÉS BŐVÍTÉSE - BUDAPEST
2023
IRODAHÁZ - BUDAPEST
2023
HOMLOKZAT FELÚJÍTÁS - BUDAPEST
2023
LAKÓÉPÜLET - BUDAÖRS
2023
↑Back to Top
© tetrA Architects studio 2023