LAKÓÉPÜLET
KÖZÉPÜLET
BELSŐÉPÍTÉSZET
KONTAKT
LAKÓÉPÜLET
KÖZÉPÜLET
BELSŐÉPÍTÉSZET
KONTAKT
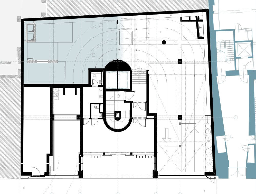
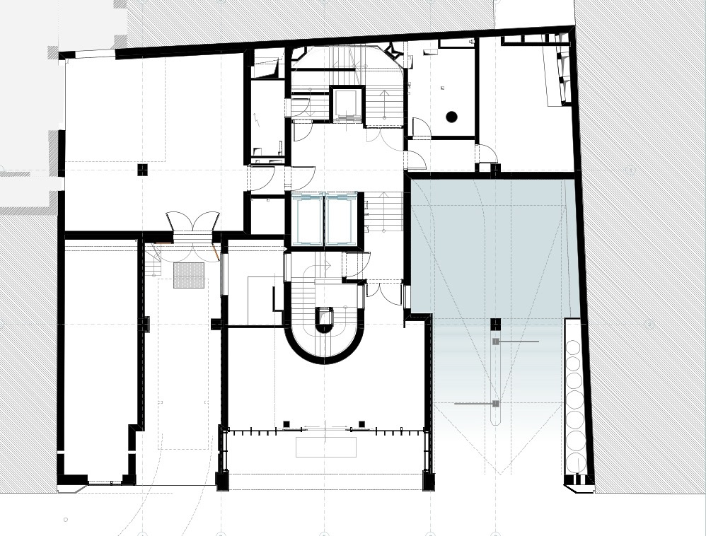
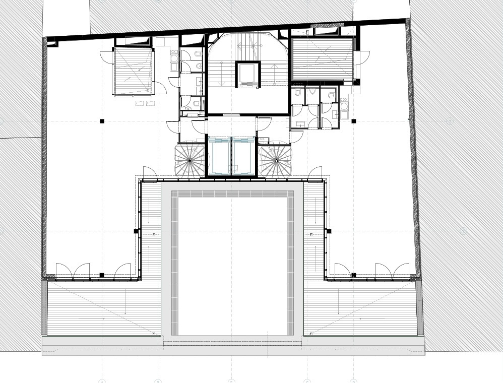
IRODAHÁZ
BUDAPEST, PAULAY UTCA
ÉPÍTÉSZET: OBELISZK STUDIO KFT. ÉS TETRA ARCHITECTS
2018
You may also like
.
2023
IRODAHÁZ FELÚJÍTÁSA ÉS BŐVÍTÉSE - BUDAPEST
2023
LAKÓÉPÜLET - BUDAÖRS
2023
LAKÓÉPÜLET - BUDAÖRS
2023
SZÁLLÁSÉPÜLET BŐVÍTÉSE - BALATONUDVARI
2023
LAKÓÉPÜLET - BUDAÖRS
2023
ÉTTEREM BELSŐ - BUDAPEST
2023
ASTORIA HOTEL - BUDAPEST
2023
VÉDETT LAKÓÉPÜLET BŐVÍTÉSE - SOMOGYMEGGYES
2023
LÁTOGATÓI KÖZPONT - IZSÁK
2023
↑
Back to Top